Kuva kohteesta Satamakatu 25 A 20

Asumisoikeusasunto, Satamakatu 25 A 20, Keskusta, 70100, Kuopio

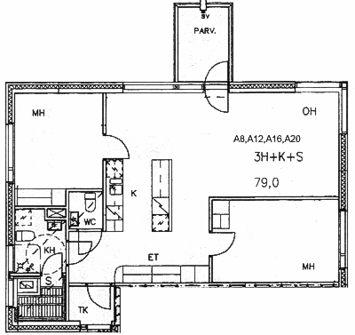
3H+K+S | 79 m²

Vapautuu alk. 9.5.2026
1 135,49 €/kkTodellinen kk
1 036,39 €/kkKäyttövastike
29 729,03Asumisoikeusmaksu

Tilava saunallinen kolmio hissitalon ylin kerros! Päätyasunto josta ikkunat avautuvat kolmeen ilmansuuntaan. Reilun kokoinen olohuone joka yhdistyy mukavasti keittiön kanssa, antaen mahdollisuuden seurusteluun päivän askareiden lomassa. Asunnon olohuoneesta on myös käynti parvekkeelle Makuuhuoneet on sijoit...eltu siten että molempiin jää oma rauhansa. Kylpyhuone ja sauna sekä myös erillis wc. Kiinteistössä on käynnissä peruskorjaus ja tämä asunto valmistuu 3.4. Huikea sijainti satamassa, palveluiden välittömässä läheisyydessä! Asunto tarjotaan hakijoille 23.2, nyt on hyvä hetki jättää hakemus meille www.asuntosaatio.fi+Lue lisää

Sijainti ja palvelut

Lähellä ei löytynyt palveluita.

Asunnon tiedot

Rakennusvuosi

1997

Lämmitys

Kaukolämpö

Kunto

Hyvä

Pysäköinti

Katso ilmoitus

Internet

Valokuitu

Ominaisuudet

oma-saunaparveke

Kohteen yhteiset tilat

pesutupa

Tila:Aktivinen
Ensihavainto:18.2.2026
Viimeisin havainto:2.4.2026
Markkinoilla:43 päivää
Osoite:Satamakatu 25 A 20, 70100 Kuopio
Asuinalue:Keskusta
Postinumero:70100
Postitoimipaikka:Kuopio
Valmistumisvuosi:1997
Asumismuoto:Asumisoikeus
Huoneistotyyppi:3H+K+S
Huoneita:3
Pinta-ala:79 m²
Huoneistoala yhteensä:79 m²
Kerros/kerroksia:5/-
Hissi:Kyllä
Talosauna:Kyllä
Parveke:Kyllä
Tupakointi kielletty:Ei
Lemmikit sallittu:Kyllä

Luovutushinta:29 729,03 €
Alkuperäinen asumisoikeusmaksu:15 753,32 €
Indeksitarkistus:13 975,71 €
Todellinen kk-kulu (sis. 4% korko):1 135,49 €/kk
Käyttövastike:1 036,39 €/kk
Perusvastike:-
Hoitovastike:-
Vakuusmaksu:-
Vesimaksu:-
Autopaikkamaksut:Katso ilmoitus

Talotyyppi:Kerrostalo
Hissi:Kyllä
Valmistumisvuosi:1997
Energialuokka:-
Lämmitys:Kaukolämpö
Ilmanvaihto:Koneellinen tulo/poisto
Kiinteistöhuolto:Huoltoyhtiö
Autopaikat:Katso ilmoitus

Saman talon tai alueen kohteita