




Asumisoikeusasunto, Satamakatu 25 C 38, Keskusta, 70100, Kuopio
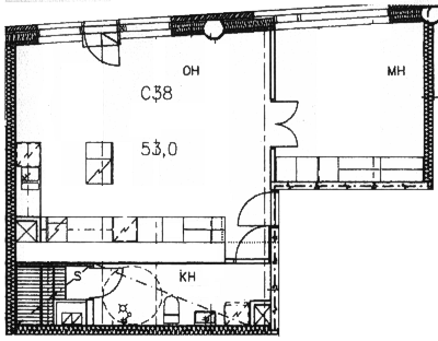
2H+K+S | 53 m²
Vapautuu alk. 21.6.2026Saunallinen kaksio, pihakannen tasolla, rauhallinen sijainti sisäpihan puolella! Tervetuloa tutustumaan tähän valoisaan ja toimivapohjaiseen 53 m² asumisoikeusasuntoon, joka sijaitsee ensimmäisessä kerroksessa pihakannen tasolla – ei katutasossa. Asunnon ikkunoista ja pihapatioalueelta avautuu näkymä rauhalliselle sisäpihalle. Olohuone ja keittiö muodostavat avaran ja käytännöllisen kokonaisuuden. Keittiössä on hyvin kaappi- ja laskutilaa sekä selkeä astianpesukonevaraus. Olohuoneesta on käynti omalle pihapatiolle, joka tarjoaa mukavaa lisätilaa oleskeluun ja tekee asumisesta erityisen miellyttävää. Makuuhuoneessa on runsaasti säilytystilaa ja tilaa suurellekin sängylle. Kylpyhuone on tilava, ja siellä sijaitsee asunnon oma sauna, joka tuo arkeen ripauksen luksusta. Asunnon pohjaratkaisu on selkeä ja helppokäyttöinen, ja kokonaisuus sopii erinomaisesti viihtyisää ja toimivaa asumista arvostavalle.Kaapelilaajakaista 50M, joka sisältyy vastikkeeseen. Kiinteistössä on käynnissä peruskorjaushanke ja tämä asunto saa mm. uuden kylpyhuoneen/saunan, keittiön (myös astianpesukone lisätään perusvarustukseen) sekä lattiapinnat, remontti valmistuu 14.7! Kiinnostuitko? Asunto tarjotaan hakijoille 31.3, järjestyksessä 30 pienimmällä asumisoikeusjärjestysnumerolla olevaa hakijaa kerrallaan. Jätä hakemus www.asuntosaatio.fi
Sijainti ja palvelut
Lähellä ei löytynyt palveluita.
Asunnon tiedot
Rakennusvuosi
1997
Lämmitys
Kaukolämpö
Kunto
Hyvä
Pysäköinti
Katso ilmoitus
Internet
Valokuitu
Ominaisuudet